Barcelona renovará el complejo deportivo municipal Francesc Abad del Besòs i el Maresme

El Ayuntamiento de Barcelona ha aprobado el proyecto para renovar las instalaciones del deportivo municipal Francesc Abad en el barrio del Besòs i el Maresme de Barcelona.

|
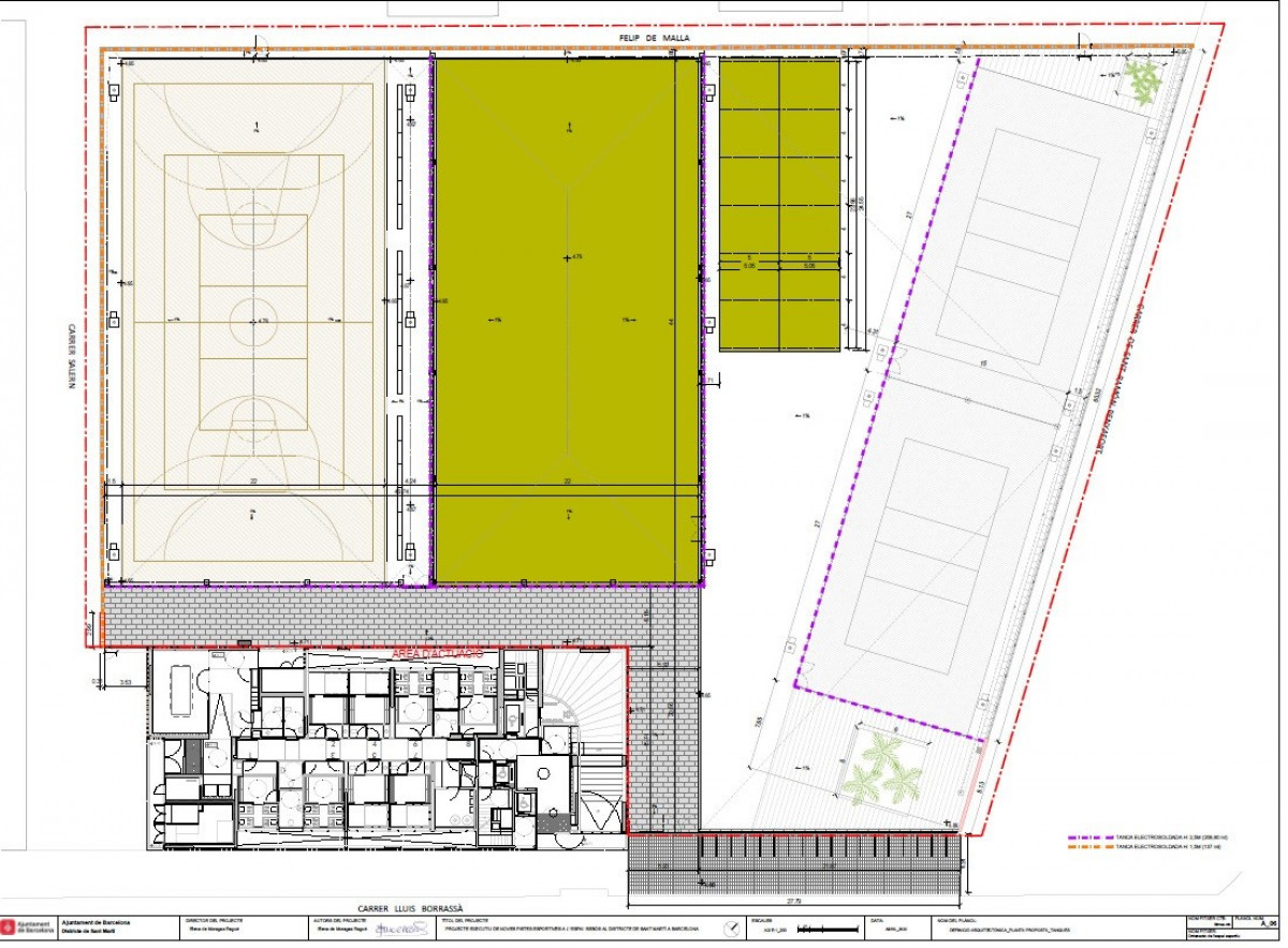
Vista en planta de las nuevas instalaciones del deportivo Francesc Abad

 

Vista en planta de las nuevas instalaciones del deportivo Francesc Abad
Barcelona renovará el complejo deportivo municipal Francesc Abad del Besòs i el Maresme | @ep

 

El Ayuntamiento de Barcelona ha aprobado el proyecto para renovar las instalaciones del deportivo municipal Francesc Abad en el barrio del Besòs i el Maresme de Barcelona.

 

Las obras empezarán este verano, tendrán una duración de 6 meses y contarán con una inversión de 1 millón de euros, ha informado el Ayuntamiento en un comunicado este domingo.

 

Se trata de un proyecto de construcción de una pista polivalente tipo Pol-2 que incorpora campos de diversos deportes como el baloncesto, el voleibol o el críquet en un solar de 4.688 metros cuadrados.

 

La actuación también incorporará vestuarios y locales de apoyo en los bajos del edificio de viviendas de titularidad municipal que el Ayuntamiento está edificando junto a las pistas deportivas.

 

El distrito de Sant Martí y el Pla de Barris han desarrollado un programa deportivo abierto a la ciudadanía del barrio del Besòs i el Maresme, principalmente a los niños y niñas y a los colectivos en riesgo de exclusión social con el objetivo de fomentar los hábitos saludables que proporciona el ejercicio físico.

Sin comentarios

Escribe tu comentario




He leído y acepto la política de privacidad

No está permitido verter comentarios contrarios a la ley o injuriantes. Nos reservamos el derecho a eliminar los comentarios que consideremos fuera de tema.
AHORA EN LA PORTADA
ECONOMÍA